选择您的国家/地区
当前地区:
China (ZH)
Asia
China(ZH)
China(EN)
选择其他国家或地区以查看特定于您所在位置的内容
继续
China (ZH)
联系我们
关于物料搬运
lifting-solutions
产品
升降机
绞车
BOP处理系统
平衡器
处理设备/末端效应
支撑结构
定制起重解决方案
服务解决方案
Encompass 服务计划
查找授权服务经销商
资源
认证法规
绞车选择支持
经销商资源
图纸
产品
升降机
绞车
BOP处理系统
平衡器
处理设备/末端效应
支撑结构
定制起重解决方案
服务解决方案
Encompass 服务计划
查找授权服务经销商
资源
认证法规
绞车选择支持
经销商资源
图纸
联系我们
关于物料搬运
China (ZH) -
Asia
China(ZH)
China(EN)
支撑结构
ZRA2(重型)
How can we help you?
请求报价
请求服务、部件或支持
查找经销商
×
点击放大
点击放大
点击放大
返回产品清单
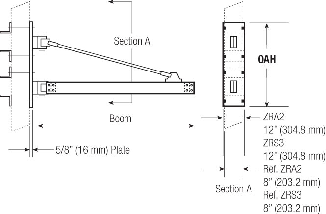
壁挂式 ZRA2(重型)旋臂吊 - 220°
700 系列重型壁挂式旋臂吊采用精密铝制 ZRA2 导轨,可轻松移动长达 20 英尺(6 米)的旋臂,旋转角度达到 220 度。旋臂具有滚动阻力小于 1% 的运行表面,该表面经过阳极氧化处理,光滑、清洁、无腐蚀。旋臂吊标配安装板总成,用于将旋臂吊安装到墙壁、现有建筑立柱或任何合适的表面。用于安装旋臂吊的任何结构都应由注册结构工程师进行安装认证。参阅附加的技术参数。
联系我们
请求报价
请求服务、部件或支持
共享
功能
详细参数
资料下载
功能
重型
起重能力为 600 磅(272 千克)至 2,000 磅(907 千克)
详细参数
ModelName
OAH = U + (mm)
OAH = U + (in.)
Weight (lbs)
Boom (m)
Capacity (kg)
Capacity (lbs)
Boom (ft.)
Weight (kg)
7060JA2W20
1423
56
354
6.1
272.2
600
20
160.9
7080JA2W18
1423
56
310
5.49
362.9
800
18
140.9
7100JA2W16
1423
56
266
4.88
453.6
1000
16
120.9
7135JA2W14
1118
44
235
4.27
612.3
1350
14
106.8
7160JA2W12
1118
44
217
3.66
725.7
1600
12
98.6
7190JA2W10
1118
44
199
3.05
861.8
1900
10
90.5
7200JA2W04
1118
44
145
1.22
907.2
2000
4
65.9
7200JA2W06
1118
44
154
1.83
907.2
2000
6
70
7200JA2W08
1118
44
181
2.44
907.2
2000
8
82.3
资料下载
Ergonomic Handling Systems - IRITS-0309-035
Parts, Operation and Maintenance Manual for Jib Crane, Models 700J, 800J, 900J