返回产品清单

壁挂式 ZRA1(轻型)旋臂吊 - 220°

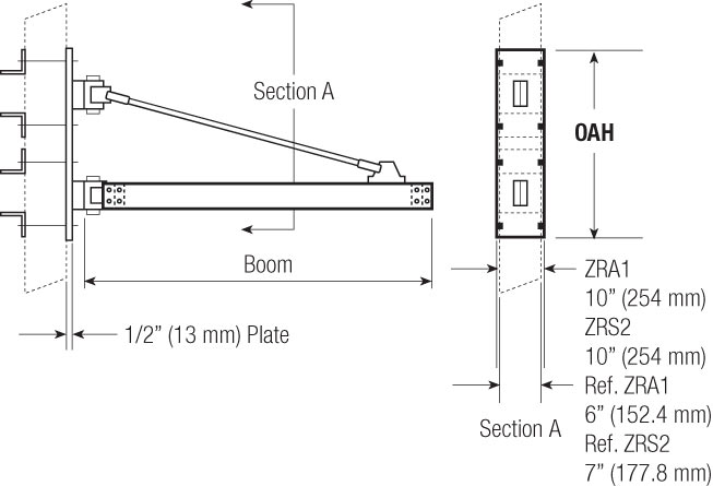
小型 700 系列壁挂式旋臂吊采用精密铝制 ZRA1 导轨,可轻松移动长达 20 英尺(6 米)的旋臂,旋转角度达到 220 度。旋臂具有滚动阻力小于 1% 的运行表面,该表面经过阳极氧化处理,光滑、清洁、无腐蚀。旋臂吊标配安装板总成,用于将旋臂吊安装到墙壁、现有建筑立柱或任何合适的表面。用于安装旋臂吊的任何结构都应由注册结构工程师进行安装认证。

功能

详细参数

资料下载