Back to the product list

Wall Mounted ZRA1 (Light) Jib Cranes - 220°

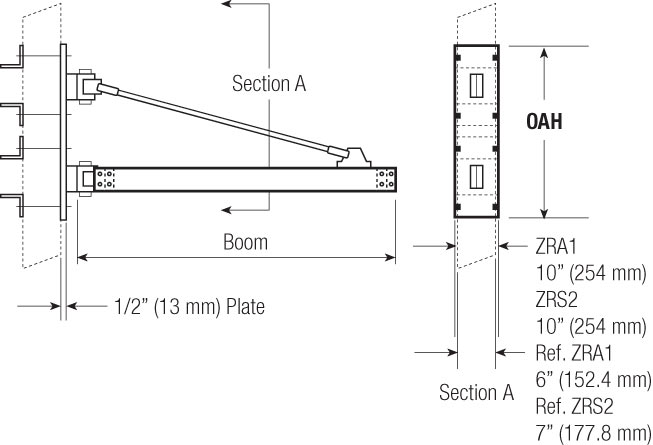
The light capacity 700 series wall mounted boom jibs utilize precision aluminum ZRA1 rail for a lightweight, easy to move boom up to 20 ft (6 m) long with 220 degree rotation. The boom features a running surface with less then 1% rolling resistance and is anodized for a smooth, clean, corrosive-free surface. The jib comes standard with a mounting plate assembly for mounting the jib to walls, existing building columns or any suitable surface. Any structure to which the Jib is mounted should be certified for this purpose by a registered structural engineer.

Features

Model Specifications

Documents